●NEWモデルハウスOPEN Re集い ~つどい~ 【富山県内 No1性能の家】
2025.11.14
●11月8日(土)~ OPEN!!!!!
【開催期間】
11月8日~12月20日まで(予定)
NEWモデルハウスOPEN致します
Re集い ~ つどい ~
新築・リノベ検討中の方々
ROOM TOUR 動画
また建売を購入検討の方へも おススメの即購入・即入居できるモデルハウス物件となっております
【販売価格】 土地(56坪)+建物(延床42.83坪)+カーポート(2台入)+空調設備一式
3500万円(税込)
※11月14日(追記) 売却済 ありがとうございました
※引き続き(お引渡しまで)見学は可能となっております
※見学会期間は令和7年11月8日~令和7年12月20日頃まで(予定)
または お電話 ☎076-466-3091
【建築場所住所】
〒939-2702 富山市 婦中町 田島874-5
(※下記リンク 現地グーグルマップ)
【建物性能】
富山県内 No1性能のフルリノベーション物件となっております
断熱等級7 (UA値=0.26)
耐震等級3(IW値=1.79)
気密性能 C値=0.72(※中間測定値 証明証付)
珪藻土仕上げの自然素材を ふんだんに使った玄関ホール
ヒノキ木製トリプルガラスサッシを採用し 温かみのあるLDK
床・壁タイル張りのキッチン空間 お手入れ性も抜群です
畳で寝るスタイルの子供部屋(デスクを買う必要もありません) 書斎としても利用可
360度中庭を望む間取り カーテン一切不要の間取りを実現しております
洗面所 お風呂も中庭に面しております すべて珪藻土仕上げ 透湿する自然素材の空間
【断熱仕様】
玄関扉:YKK AP イノベストD70
開口部:APW651(木製トリプルガラス) APW430(樹脂トリプルガラス)
断熱材:(壁)ネオマフォーム30mm外張り付加断熱+36キログラスウール105m +ウルト可変透湿気密シート
(天井)20キログラスウール250mm+ウルト可変透湿気密シート
(床)ネオマゼウス65mm+60mm 合計125mm
基礎断熱ネオマゼウス65mm+65mm 合計130mm
【設備】
換気設備:ダクトレス第一種熱交換換気扇(各居室付)
エアコン:暖房強化型エアコン(LDK用 天井付)1台
暖房強化型エアコン(2階洋室用 壁付)1台
各居室ルームエアコン(1階寝室 2階洋室用 壁付)2台
給湯器:Panasonicエコキュート
キッチン:Panasonic (トリプルワイドIH)
キッチン収納:造作家具
洗面台:造作家具
浴室:Panasonic
トイレ:TOTO タンクレストイレ ネオレスト(1階2階)
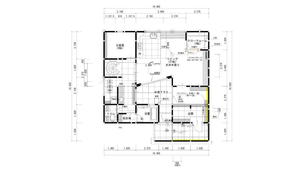
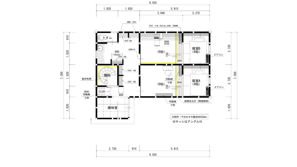
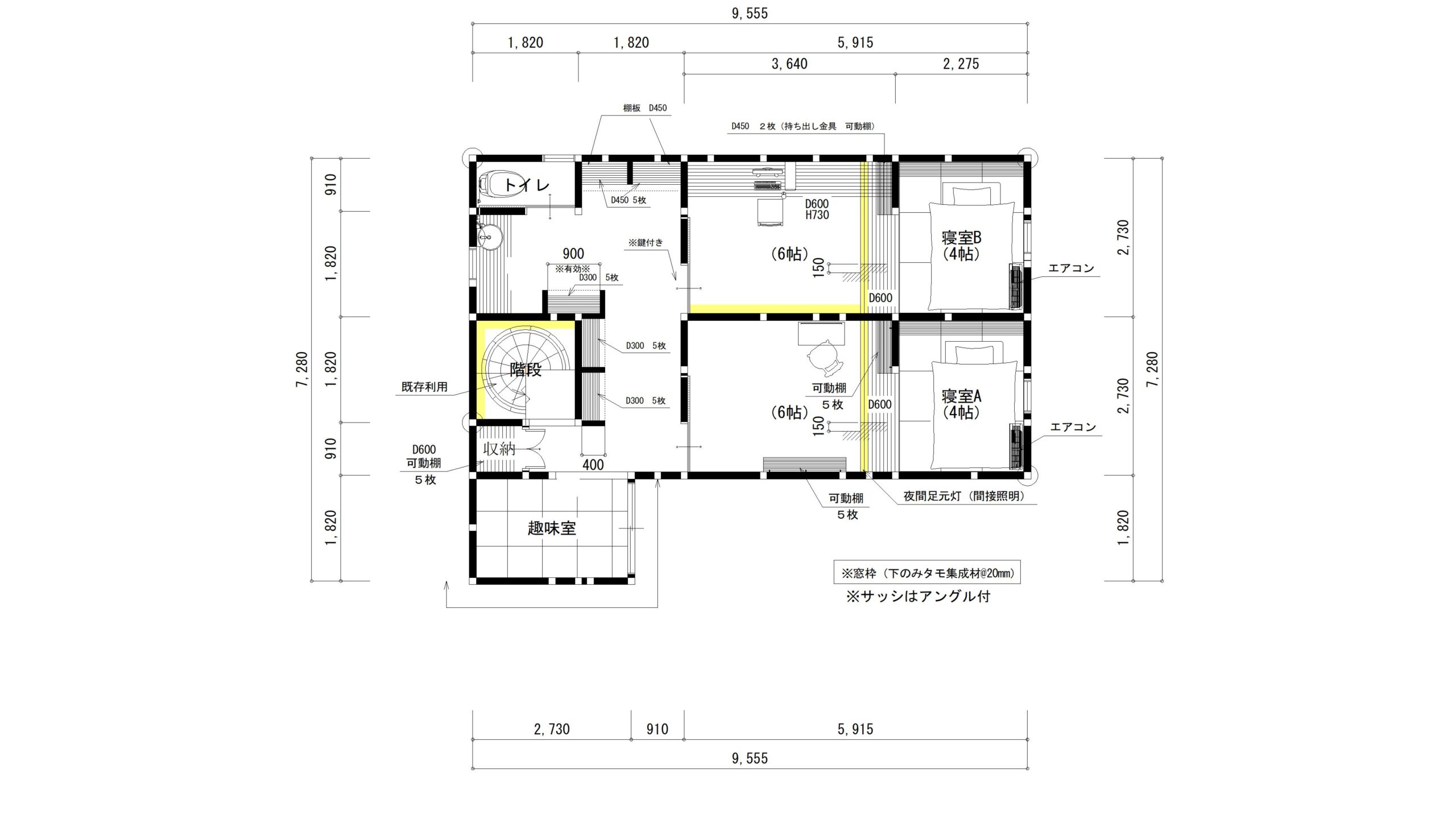
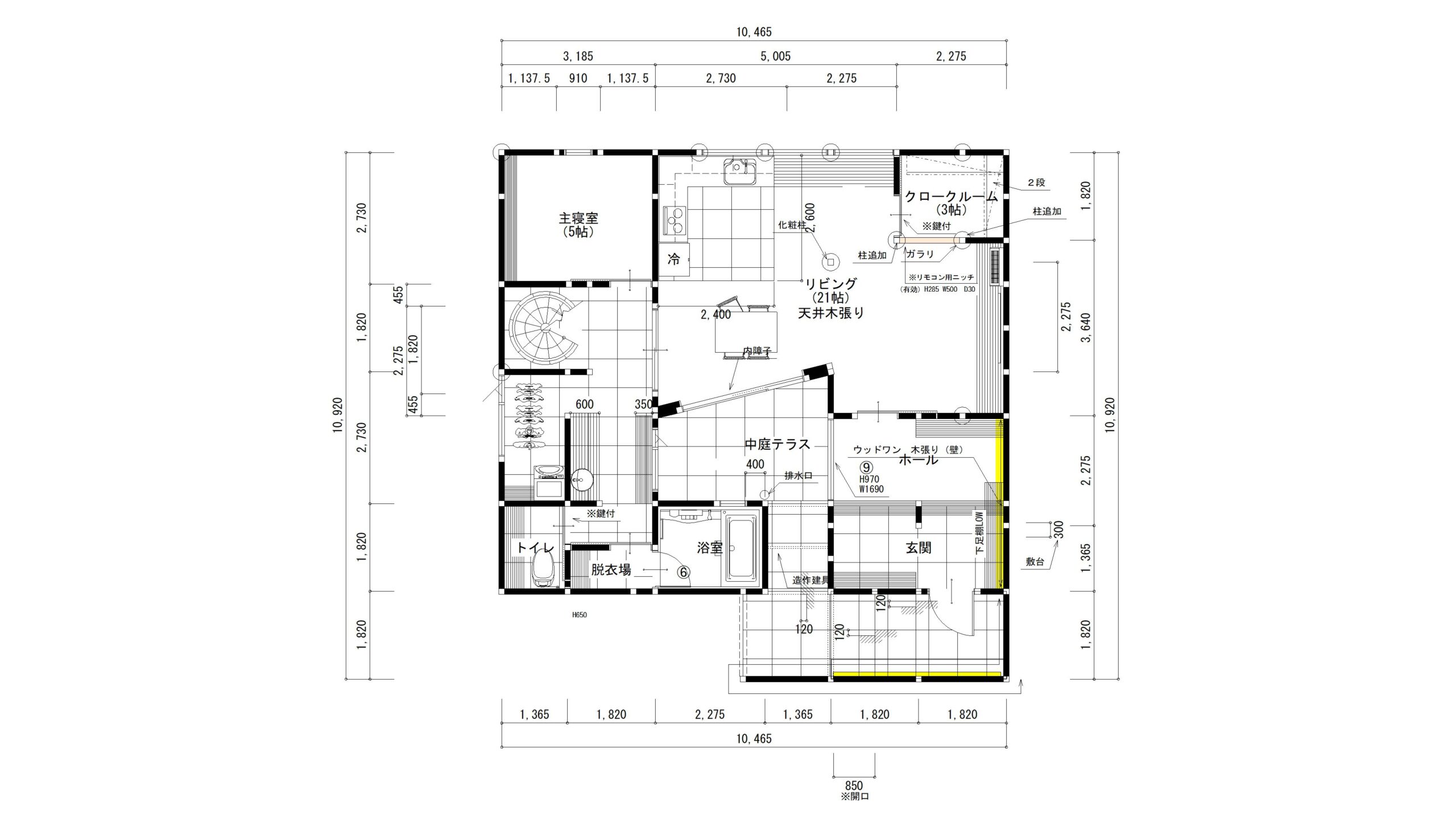
【間取り】
※クリックして拡大してご覧ください
1階
2階
平面図記載の詳細 現地 一部変更になっている箇所もあります
●家づくりナビフェスタ in富山
2025.11.13
令和7年 11月15日(土)10:00~16:30
11月16日(日)10:00~15:30
家づくりナビフェスタin富山へ参加致します
家づくりのご相談お待ちしております
スタンプラリーも開催されております
出展企業一覧
●INファボーレ リフォーム・リノベーション相談会開催 !!!
2025.10.3
リフォーム・リノベーション相談会 INファボーレ
日時:10月12日(日)13日(月)10:00~16:00
参加無料 平和堂商品券3000円プレゼント
ご来場お待ちしております!
●リフォーム産業フェア2025 (東京ビックサイト)
2025.9.1
●リフォーム産業フェア2025 へ参加致します
日時:9月17日(水)18日(木)
場所:東京ビックサイト
【セミナーのご案内】
『全社デザイングランプリ受賞!3名のプロが実践する、リノベのデザイン戦略を伝授』
2025年9月18日(木) 14:30~15:20
●夏季休暇のご案内
2025.8.5
●夏季休暇のご案内
平素は ご厚意にあずかり、心より御礼申し上げます
下記の期間を夏季休暇(お盆休み)とさせて頂きます
8月10日(日)~8月17日(日)
8月18日(月)より通常営業とさせて頂きます
夏季休暇中に頂いたお問い合わせについては、期間終了後に順次回答させていただきます。
●家づくりナビフェスタIN高岡 7月5日(土)6日(日)
2025.5.29
●家づくりナビフェスタ IN高岡 に参加致します。
日時:7月5日(土)10:00~16:30
7月6日(日)10:00~15:30
場所:高岡テクノドーム
ご来場お待ちしております!!!
●完成見学会 5月24日(土)25日(日) フルリノベ・再生住宅 ※予約受付中
2025.5.7
施主様のご厚意により 完成見学会を開催させて頂きます
築50年以上の建物が 現代に甦ります
フルリノベーション 高性能・高耐震建物へと フルリノベ・再生工事の完成見学会です
(富山市 某所 K様邸)
※日時:5月24日(土)25日(日) 10:00~17:00
ご予約後 場所等 詳細をお送りさせて頂きます
●断熱改修 (断熱等級6へ改修) UA値=0.47
●耐震改修 (IW値=1.0以上)
以下見所↓
60mmネオマゼウス基礎断熱 日射取得型トリプルガラスから南面の日射を取り入れた
蓄熱タイルテラス空間放熱循環パッシブ設計
夏の日差しは軒の出1500mmがカットします
冬場の日射取得・蓄熱タイルテラス 通風性を確保する開口部計画
立山連峰を望む2階デッキテラス展望空間
タイルテラス越しの障子戸から 優しい光が入るLDK
旅館に来たかの様な シンプルで無垢材に包まれたおちついた空間
各自専用の居室・寝室 プライベートルームを確保
防音8Kシアタールーム 7.1チャンネルサラウンドシステム 第一種熱交換換気システム
質感の良い外観
●家づくりナビフェスタ IN 富山 5月17日(土)18日(日)
2025.5.2
●家づくりナビフェスタ in 富山 へ参加させて頂きます。
日時:5月17日(土)18日(日)
場所:富山産業展示館 テクノホール
私たち 共栄ホームズ 相談ブース出展となります
当日 ご参加・ご相談 お待ちしております
●春の住宅 大感謝祭 3月20日・21日
2025.3.13
●春の住宅 大感謝祭を開催致します
場所:当社 モデルハウス
日時:3月20日(祝木) 21日 (金)22日(土)
<イベント内容>
①家づくり相談会
新築・リフォーム各種補助金等
②風水相談会
(間取りが分かるものをお持ちください)
③キッチン体験会
(22日限定イベント) IHで料理を作ろう
④モデルハウス見学
モデルハウスを自由にご見学下さい
⑤サクララテ カフェコーナー
その他 ドリンクもご用意しております
その他 粗品プレゼント
●完成見学会のご案内 再生住宅 2月22日(土)23日(日)
2025.2.9
施主様のご厚意により 完成見学会を開催させて頂きます
フルリノベーション 高性能・高耐震建物再生工事の完成見学会となっております
(射水市 K様邸)
【建物情報】
延床面積 156.50㎡(47.34坪)
間取り 4LDK(洋室4部屋+LDK)
子供部屋2部屋(7帖洋室)以外 両親それぞれも個室(6帖洋室)を持つ ゆとりある間取り空間
1階は サンルーム(6帖)+ファミリークローク(5帖)をコアROOM型とした回遊動線型の間取り
【改修後 建物性能】
断熱等級5 (UA値=0.54)
気密性 C値=0.3
IW値=1.5 (耐震等級3相当)
【日時】 2月22日(土)23日(日) 10:00~17:00
【場所】 射水市
※ご予約を頂けた方へ ご連絡差し上げさせて頂きます
☎076-466-3091(お電話でのご予約)


































